壓輪與軸承熱裝后拆卸或安裝方案
1. 客戶需求
( 1)工件類型:壓輪,軸承
( 2)加熱需求:加熱后,拆卸或者安裝
( 3)壓輪材質:20MnCr5 合金鋼(4)膨脹量:30 絲
( 5)加熱時間和溫度要求:暫無明確要求,只要能加熱安裝和拆卸即可;
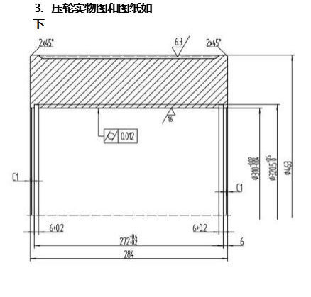
2. 工件信息如下
工件類型 | 內徑(mm) | 外徑(mm) | 高度(mm) | 重量(kg) |
壓輪 | 310 | 463 | 284 | 150 |
軸承 | 95 | 200 | 103 | / |
根據需方的工件尺寸和技術要求,經熱工工程師計算,初步確定選用 40KW 中頻 加熱電源。 中頻加熱器采用 IGBT 和全空冷式感應加熱器。 即柔性感應電纜
纏繞在工件外部對其進行感應加熱,利用工件膨脹量大于軸膨脹量的原理。
此臺設備也可以用于最小內徑 95mm 軸承加熱安裝,操作方式如下
找一個直徑小于要加熱軸承內徑的輔助工裝(非金屬,絕緣材質) ,把線圈纏繞在輔助
工裝上,盡量使感應線接近軸承內孔,此臺設備功率較大,加熱速度很快,軸承內圈加熱至 80℃即可,加熱方式如圖中所示。
除以上方式,也可用保溫毯包裹軸承外圈,把線圈纏繞之后啟動加熱。
(設備使用拆卸過程中需要有輔助工具撬棍或液壓拉瑪,邊加熱邊往外拉。 )
二、 供方方案——中頻加熱器 根據需方的工件尺寸和技術要求,經熱工工程師計算,初步確定選用 40KW 中頻 加熱電源。 中頻加熱器采用 IGBT 和全空冷式感應加熱器。 即柔性感應電纜 纏繞在工件外部對其進行感應加熱,利用工件膨脹量大于軸膨脹量的原理。 此臺設備也可以用于最小內徑 95mm 軸承加熱安裝,操作方式如下 找一個直徑小于要加熱軸承內徑的輔助工裝(非金屬,絕緣材質) ,把線圈纏繞在輔助
工裝上,盡量使感應線接近軸承內孔,此臺設備功率較大,加熱速度很快,軸承內圈加熱至 80℃即可,加熱方式如圖中所示。
除以上方式,也可用保溫毯包裹軸承外圈,把線圈纏繞之后啟動加熱。 (設備使用拆卸過程中需要有輔助工具撬棍或液壓拉瑪,邊加熱邊往外拉。 ) |
最新產品
同類文章排行
- 拆卸聯軸器-崇德科技
- 拆裝皮帶輪-科達開發
- 聯軸器/刻背輪拆卸案例
- 聯軸器拆卸案例
- 上海ABB軸承內套拆卸案例
- 壓輪與軸承熱裝后拆卸或安裝方案
- 中頻繞線感應加熱器聯軸器拆卸-遼寧首鋼
- 中頻感應加熱安裝聯軸器、拆卸聯軸器-馬鞍山市天工科技股份有限公司
- 中頻感應加熱輪轂拆卸-烏海建龍包鋼萬騰鋼鐵有限公司
- WTR軸承加熱器為崗山鐵路奉獻一份力
最新資訊文章
您的瀏覽歷史
